NOTICE OF A PUBLIC HEARING FOR A MINOR VARIANCE APPLICATION NO. A15-25
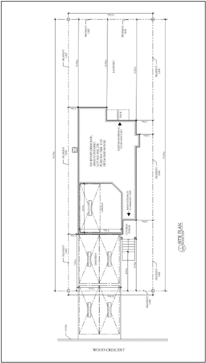
TAKE NOTICE that an application has been submitted for a Minor Variance application on the property known legally as PLAN 51M1130 PT LOT 27 RP;51R42939 PARTS 22 TO 24, municipally 128 Wood Crescent. The applicant is seeking relief from Section 4.28.4 of Essa Township’s Zoning By-law 2003-50 which stipulates that all required parking for residential zones shall be located externally. The applicant is proposing to utilize the garage as a parking for the primary unit to accommodate an external parking for a basement ARU.
AND FURTHER TAKE NOTICE that the Committee of Adjustment has appointed November 28th, 2025, for a Public Hearing to be held at approximately 10:00 a.m.
You may make a written submission through the undersigned Secretary-Treasurer in which your comments will be provided to the Committee of Adjustment prior to their decision on the application. If you wish to be notified of the decision of the Committee of Adjustment in respect of this application, you must make a written request to the Committee of Adjustment at the address shown above, or via email to aburmy@essatownship.on.ca.
Dated this 10th day of November 2025.
Yours truly,
Anmol Burmy
Planning and Development Coordinator/Secretary-Treasurer
(705) 424-9917 ext.137
Context Map:

Proposal:
